A proposal for an over-height block of five whole-floor apartments has been submitted for council approval.
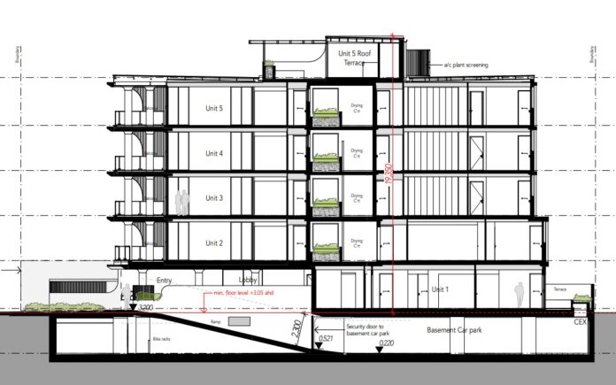
The building would reach a maximum height of 19.35m, above the maximum of 12m allowed for the area, triggering the need for a future public notification period as part of an impact assessment.
The apartments would be built on a 670sqm block of vacant land at 47 Memorial Avenue, Maroochydore.
A report by Adams and Sparkes Town Planning on behalf of Cole Projects Qld Pty Ltd states that approval for a five-unit complex was granted in February, but this new ‘other change’ application seeks to add more building height.
The existing approval is for two two-bedroom units and three three-bedroom units over five levels reaching 11.9m high, with a basement level for car parking.
“The proposed development maintains the approved number of units (five) but redistributes them across five residential levels with one unit per level, includes a roof terrace above level five, and retains the basement level for car parking,” the report says.
“The development comprises one four-bedroom unit and four three-bedroom units, each with ample private open space and designed to ensure privacy for adjoining properties.”
Scroll down to SUBSCRIBE for our FREE news feed, direct to your inbox daily.
Parking spaces would be provided for 17 cars, which is unchanged from the existing approval.
The report says the site is generally surrounded by medium- to high-density residential development, comprised of dual occupancies and multiple dwelling unit complexes.
“A number of older dwelling houses still exist in the area, which are likely to be redeveloped in the near future to deliver higher density housing,” it states.
“The site is located within close proximity to the central business district of Maroochydore, with the Ocean Street hospitality precinct located 730m north-west of the site and the new Maroochydore city centre Priority Development Area (PDA) being located 530m south-west of the site. Further, the site is located within walking distance (260m) of the Cotton Tree local centre.”

The report argues the extra building height won’t affect neighbouring properties and is appropriate for the site’s context. It points out that the Maroochydore CBD allows buildings up to 40m, and up to 100m in the PDA, while there are 25m-high developments along the northern side of Memorial Avenue.
“The proposed additional height will not impact views from properties to the south or west, based on the existing built form in the area,” it says.
“Views toward the ocean are already interrupted by taller buildings along Memorial Avenue and the Esplanade, meaning the proposal does not create a worsened or unreasonable outcome for access to views from surrounding premises.”
Under the draft Sunshine Coast planning scheme, which is yet to be approved, the maximum building height for the site would be six storeys and up to 22m.
The report also acknowledges the side and rear setbacks on level five and the terrace do not comply with requirements, but argues no loss of privacy or overshadowing will occur.
“Adequate separation is maintained, with compliant setbacks below 12m and landscaping buffers along all boundaries, which softens the built form and enhances visual amenity,” it says.
The subject site is located within the Medium Density Residential Zone of the Maroochydore/Kuluin Local Plan Area.
“The application will be subject to public notification, which will provide a platform for members of the community to express their expectations in relation to the development proposal specifically,” the report says.




