100% Locally Owned, Independent and Free

100% Locally Owned, Independent and Free

Sunshine Coast councillors set to decide fate of Wises Farm development proposal

Do you have a news tip? Click here to send to our news team.

Round-the-clock dam works begin after milestone reached

A temporary dam has been completed as part of the Lake Macdonald Dam Improvement Project, paving the way for the next critical phase of More

Man taken to hospital after near-drowning at beach

A young man has been taken to hospital after a near-drowning at a popular Sunshine Coast beach. Emergency services were called to Melrose Parade at More

Serious crash shuts down highway lanes

A man has been airlifted to hospital after a crash that closed the northbound lanes of the Bruce Highway. Police are investigating the serious single-vehicle More

Police appeal for help to find woman

Police are seeking public assistance to locate a 31-year-old woman who has not been seen since March 30. Rachel, who is known to frequent the More

The harbour entrance proposals that were put aside

The state government put some options on the backburner, including an extended rock wall, when it considered recommendations to address a hazardous harbour entrance More

Motorbike rider pops wheelie in front of police

A motorbike rider's stunt through a main intersection has been captured on film by police who were waiting at traffic lights. The man was caught More

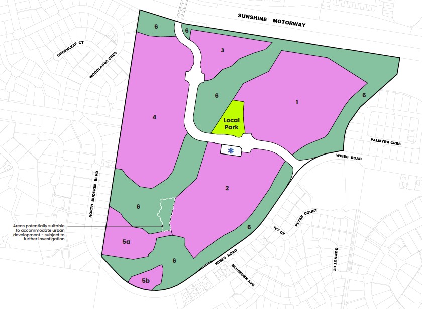
Councillors will next week determine whether to approve a development plan for an iconic farm, with the proposal to establish about 420 dwellings recommended for approval.

The agenda for next Thursday’s ordinary meeting of Sunshine Coast Council includes reaching a determination on a development application for Wises Farm.

The proposal includes about 420 residential dwellings, 1500sqm for business use, community facilities, 13.5 hectares of open areas and associated bulk earthworks.

A council officer’s report prepared ahead of the meeting says the proposal seeks approval for an overall development concept that would guide future assessment pathways for subsequent permit applications across the site.

The report says the proposal would be a “suitable and appropriate development of the land, consistent with the expectations of the planning scheme for the subject site” and should be approved.

The 39-hectare property, which has been owned by generations of the Wise family, is the largest undeveloped open space in the Maroochydore/Buderim area.

Peter Wise passed away in 2024 and it was reported in August that the farm had sold to development company QM Properties for $93.5 million, after being on the market since 2022.

Do you have an opinion to share? Submit a Letter to the Editor at Sunshine Coast News via news@sunshinecoastnews.com.auYou must include your name and suburb.

The current development application was originally submitted in 2022 and underwent public notification in 2024. Of the 60 properly made submissions, 49 were opposed, seven were in support and four were neutral.

A preliminary approval for the site was issued in 2012 by the Planning and Environment Court and remains current.

“Like the current application, that approval also included a variation request together with a local structure plan that would regulate future development in such a way to provide for a residential community of approximately 570 dwellings,” the officer’s report says.

Related story: Former MP digs deep to save farmer’s beloved figs

“The subject application has a similar layout and distribution of land uses to the development concept associated with the earlier preliminary approval. However, in the current application the extent of urban development is reduced (from approximately 570 dwellings to approximately 420 dwellings), and the areas of environmental management/drainage reserve are increased in order to meet contemporary planning scheme requirements in relation to flood immunity and impacts, stormwater management and the protection of ecologically important areas.”

The report says the proposed development would be for low- to medium-density residential, with a height limit of 8.5m and an allowance for a small local centre.

“The development would be set within large areas of open space comprising reserves for drainage, ecological protection, landscape buffering and local park,” it says.

The proposed precinct plan for Wises Farm. Picture: Urbis

“The maximum number of dwellings proposed for the site is 420 … It is understood that the developer is intending to develop the site primarily for dwelling houses, with some dual occupancies and small-scale multiple dwellings in suitable locations.

“Although the proposed lot sizes are smaller than existing lots in the established low-density residential areas of North Buderim to the west, they are larger than the lots within the Sunshine Cove residential estate located to the north.

“This transitioning of lot size is proposed to address the interface with larger lots to the west. It is considered that the development would be of a scale and intensity that is generally less than other parts of the central Sunshine Coast and would respect its local context and setting.”

Related story: Telco appeals council rejection of proposed phone tower

The application proposes a single 6200sqm park but the report says this would be “insufficient to meet the total park and recreation needs of the overall community”, with a condition recommended that requires a second park of 1500sqm also be delivered.

The council officer also recommends a special rate and charge levy be considered for future lots created as part of the approval to “cover any costs associated with maintaining a higher-than-normal landscaping standard”.

The application was originally submitted by Land Line Investments Pty Ltd but is now under Norfolk Estates Pty Ltd, a company linked to QM Properties.

Subscribe to SCN’s free daily news email

This field is for validation purposes and should be left unchanged.
This field is hidden when viewing the form
[scn_go_back_button] Return Home
Share