A residential subdivision with more than 100 lots has been proposed for a fast-growing Sunshine Coast suburb.
The plan to reconfigure 12.68 hectares along Burnside Road at Burnside has been submitted to Sunshine Coast Council by Blue Sky Estates Pty Ltd.
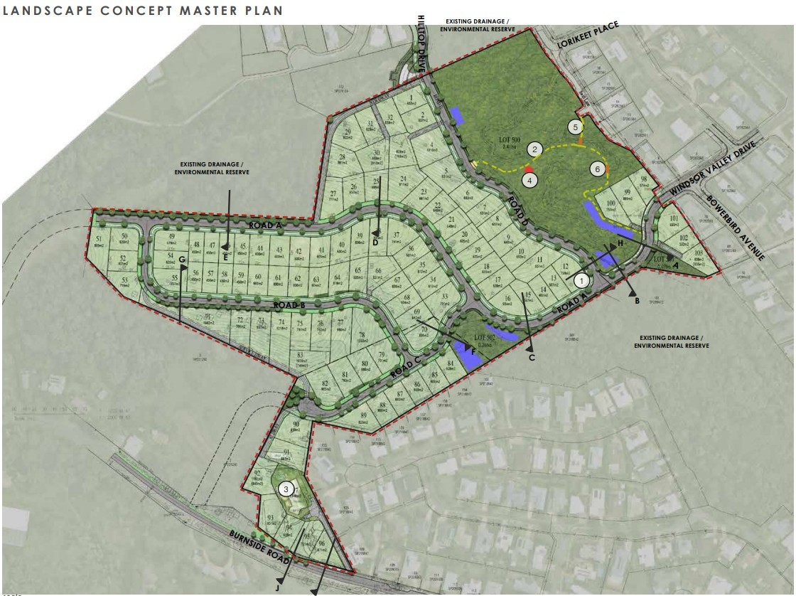
A planning report by Subdivisions (Qld) Pty Ltd on behalf of the applicant says the proposed subdivision would include 103 lots ranging from 450sqm to 2125sqm.
The site is comprised of two lots – 113 Burnside Road and 2 Swift Lane – and borders several other housing estates.
“The proposed subdivision enables the logical extension of both Windsor Park from the north and the Windsor Valley Drive development from the east,” the report states.
Related story: Developer plans 66-lot subdivision in fast-growing area
Plans show the 103 lots would include 22 that are greater than 800sqm, 13 less than 600sqm and 14 dual-occupancy blocks.
“The proposed development provides for 13 allotments under 600sqm to provide lower-cost land options,” the report says.
The site has historically been used for agriculture such as grazing and a pine plantation, which still remains in the northern portion of the block.
An existing house on the site, which the report says is “served by a winding access driveway, swimming pool, tennis court, shed and terraced gardens”, is proposed to be retained.

The site is included in the Nambour and Surrounds Local Plan Area and zoned Emerging Community.
“The proposal includes a variation request to apply the provisions of the Low Density Residential Zone to the subject site. This approach aligns with, and is consistent with, the land use intent and performance outcomes for the Emerging Community Zone under the Nambour Local Plan code,” the report says.
“Importantly, applying the Low Density Residential Zone provisions will also ensure that future residents are not unduly burdened by the need to lodge an impact-assessable material change of use application for a dual occupancy on the nominated dual-occupancy lots.”
Do you have an opinion to share? Submit a Letter to the Editor at Sunshine Coast News via news@sunshinecoastnews.com.au. You must include your name and suburb.
Access to the development is proposed from Windsor Valley Drive, Hilltop Drive and Burnside Road. Site plans show four new streets within the subdivision.
The report says the proposed development has access to the nearby bus stop located at the Nambour TAFE.
The proposed development includes a central meeting place, walking trail and about 2.75 hectares of drainage reserve for rehabilitation and revegetation.
“The provision of the walking path through the proposed drainage reserve provides an opportunity for residents connect with nature and come together at the proposed meeting place to build a strong sense of community,” the report says.

ASIC documents show Blue Sky Estates Pty Ltd is directed by Marcus Pignata, Gordon Downing and Noel Covey. Mr Covey is also the director of Subdivisions (Qld).
The application is subject to impact assessment.




